متاح للبيع
  • ()
  • ديسمبر 18, 2025
  • العاصمة الادارية, القاهرة

وصف

Akam Developments constructed Scenario New Capital Compound over 39 acres of land in the New Capital City. It is a state-of-the-art gated community that was planned to be a comfortable living destination for tranquility seekers who want to enjoy the luxury the city has to offer. 

The master plan of Scenario New Capital Compound was designed to sketch a variety of facilities that grant homeowners a relaxing and refreshing environment. It exhibits a wide range of natural elements and exceptional features that ensure such a harmony exists. 

Akam Developments also hired the best engineering consultants to deliver the lavish homes of Scenario New Capital. Moreover, it smartly chose the location of the elite units of Scenario New Capital, specifically in the 7th residential zone of the New Capital City. 

It is not only easily accessible via several main roads but also in proximity to many of the vital facilities in the area

التفاصيل
معرف المشروع: 86
السعر:
خريطة
مشاركة:
أحدث العقارات

العقارات في المشروع "scenario new capital"

Apartment scenario
معروض للبيع

العاصمة الادارية, القاهرة

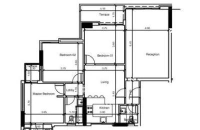
  • 3
  • 3
  • 170 م²
Akam Developments
Akam Developments
EGP 2,500,000